Terreno - ŽMINJ - 300.000 EUR
| Posizione | ŽMINJ, Istria |
| Prezzo € | 300.000 |
| Superficie terrestre | 5100 m2 |
| Vicino alla spiaggia | Si |
| Distanza dal mare | 0 m |
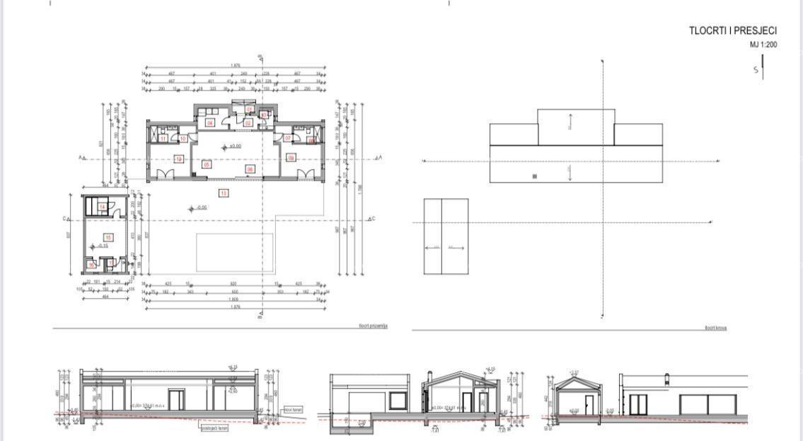
In vendita tre lotti edificabili e un lotto agricolo. Il terreno edificabile, di superficie 1403 m², viene venduto insieme a un terreno agricolo di 879 m². Attualmente è in fase di rilascio il permesso di costruzione per la realizzazione di una casa prefabbricata Ember V1 dell'azienda Domus Plus, con annessa costruzione accessoria (cucina estiva e sauna) e piscina esterna. Le altre due lotti edificabili in vendita: Lotto, superficie 1410 m². Lotto, superficie 1408 m². Tutti i lotti possono essere acquistati separatamente o in blocco, con la possibilità di acquisire il progetto di costruzione della casa. Elettricità e acqua sono disponibili nelle vicinanze dei lotti. I terreni sono delimitati da una strada di campagna recentemente asfaltata e si trovano in un ambiente tranquillo, pacifico e naturale, nell'ultima fila della zona edificabile, garantendo privacy. Il villaggio si trova a 7 km da Žminj. Per ulteriori informazioni e visite contattare: Azra +385 91 611 5706 +385 98 420 885 azra@almadominvest.com
ID: 1204689